Property
information
物件情報
中古一戸建て
さくら市氏家 中古住宅





5DK
価格 500 万円 (税込)
| 所在地 | 栃木県さくら市氏家 |
|---|---|
| 交通 | 東北本線「氏家駅」駅から約徒歩5分 |
| 土地面積 | 250.04㎡ |
| 価格 | 500万円 |
POINT
- 南向き
- 駅から徒歩5分
- 閑静な住宅街
- 庭10坪以上
設備仕様
全居室収納、上水道、下水道、プロパンガス、庭、照明器具、掘ごたつ
周辺情報
アクセス
栃木県さくら市氏家
雅商事の
感染症予防対策
新型コロナウイルスへの対応につきまして、
お客様への感染予防及び拡散防止のため以下の対応を実施しています。
ご予約は事前のメールまたはお電話にて。
お客様への感染予防及び拡散防止のため以下の対応を実施しています。
ご予約は事前のメールまたはお電話にて。
検温
マスク着用
消毒
密集回避
換気
物件情報
| 物件名 | |
|---|---|
| 築年月 | 1975年8月 |
| 現況 | 空き家 |
| 住所 | 栃木県さくら市氏家 |
| 種目 | |
| 交通 | 東北本線「氏家」駅より徒歩5分 |
| 価格 | 500万円 |
| うち消費税 | |
| 引き渡し時期 | 即時 |
| 取引態様 | 専任媒介 |
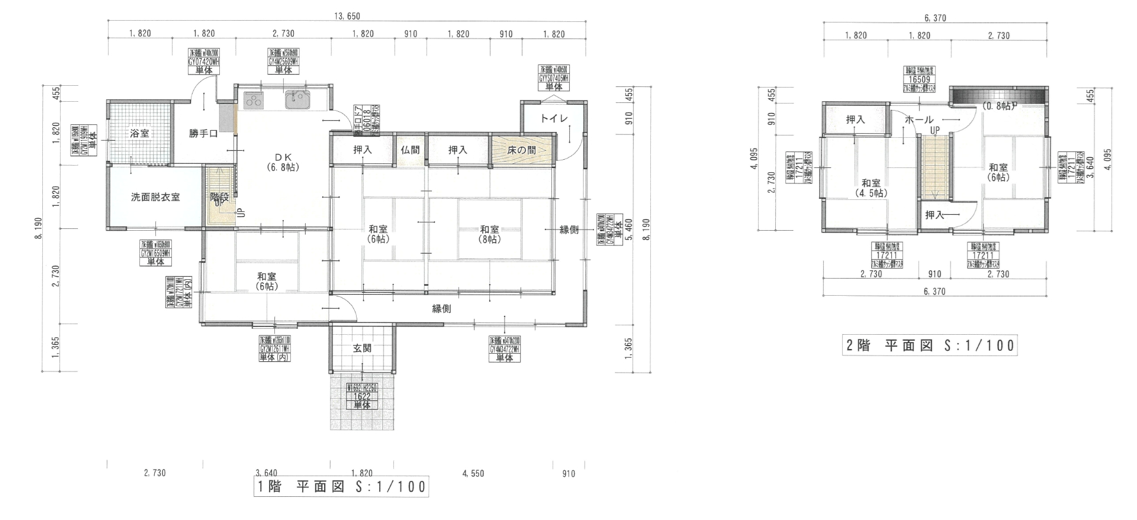
| 間取 | 5DK |
| 間取詳細 | 5DK(和8/6/6/6/6) |
| 構造 | 木造 |
| 建物面積 | 104.29㎡ |
| 土地面積 | 250.04㎡ |
| 建ぺい率 | 60% |
| 容積率 | 200% |
| 私道面積 | |
| 用途 | |
| 国土法 | |
| その他法令 | |
| 土地権利 | 所有権 |
| 階建 | |
| セットパック | |
| 都市計画 | 非線引き |
| 地目 | 宅地 |
| 地勢 | 平坦 |
| 借地料 | |
| 借地年月 | |
| 面積計測方式 | |
| 接道状況 | 西 |
| 駐車場 | |
| 施設費用 | |
| 学校区 | 氏家小学校・氏家中学校 |
| 設備・条件 | |
| 備考 |
